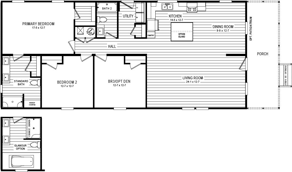
CLAYTON HOMES-BEAUFORT

2600 "CADDIE" 6828

  • ROC749575NCAB

  • 3 beds

     • 2 baths

  • 1,790 sq. ft.

The 2600 "CADDIE" 6828 Exterior. This Manufactured Mobile Home features 3 bedrooms and 2 baths.
28' Floor Plan
32' Wide The 2700 "CADDIE" 6828 Exterior. This Manufactured Mobile Home features 3 bedrooms and 2 baths.
28' Floor Plan
(843) 846-6694

Monday - Friday: 9am - 6pm

Saturday: 9am - 5pm

Sunday: Closed

CLAYTON HOMES-BEAUFORT

3418 TRASK PARKWAY
BEAUFORT, SC 29906

Our home building facilities invest in continuous product and process improvements. Plans, dimensions, features, materials, specifications, and availability are subject to change without notice or obligation. Renderings and floor plans are representative likenesses of our homes and many differ from actual homes. We invite you to tour a Home Center near you and inspect the highest value in quality housing available or call (843) 846-6694 to speak with a Home Consultant. ©2026, CMH. All rights reserved.